Located in one of the most exclusive residential enclaves along the coastline of Benissa, within the prestigious Racó de Galeno area, Villa Irati represents the essence of refined contemporary Mediterranean living. Ideally positioned between Moraira and Calpe, the property enjoys a privileged elevated setting overlooking the sea and the natural lan...dscape of the Costa Blanca North.
From the very first impression, the villa stands out for its elegant architectural composition of clean white volumes and floor-to-ceiling glazing that seamlessly connects indoor and outdoor living spaces. The main façade opens onto a spectacular panoramic terrace with an infinity pool, creating a continuous visual flow between the living area, dining space and the Mediterranean horizon.
The interior has been carefully designed to reflect both sophistication and comfort. Natural light floods the open-plan living spaces, where refined materials, soft tones and thoughtful spatial planning create a calm and contemporary atmosphere. The main living room features multiple lounge areas and maintains a direct visual connection with the dining area and kitchen, enhancing the sense of openness and fluidity throughout the home.
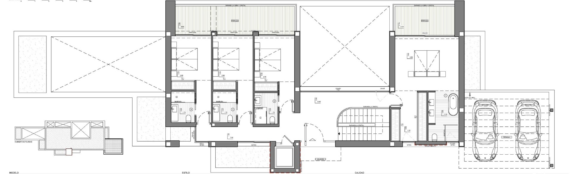
The upper level hosts the night area, where the bedrooms enjoy direct access to private terraces — perfect for waking up to uninterrupted sea views and the tranquil sounds of the Mediterranean environment.
A generous lower level offers additional flexibility and can easily accommodate a private gym, wine cellar, entertainment lounge or an additional guest suite depending on the owner's lifestyle needs.
Outside, landscaped gardens and several covered terraces provide year-round enjoyment of the Costa Blanca climate — ideal for entertaining guests, sunset evenings or relaxing moments by the infinity pool overlooking the sea.
Access to the property is provided from the upper part of the plot, where an elegant pedestrian entrance and a covered garage for two vehicles are located. From this level, both an exterior staircase and an internal lift connect all floors of the villa, ensuring comfort, accessibility and architectural coherence.
Villa Irati is more than a residence — it is a statement property designed for those seeking privacy, design excellence and panoramic Mediterranean views in one of the most desirable locations on the Costa Blanca.