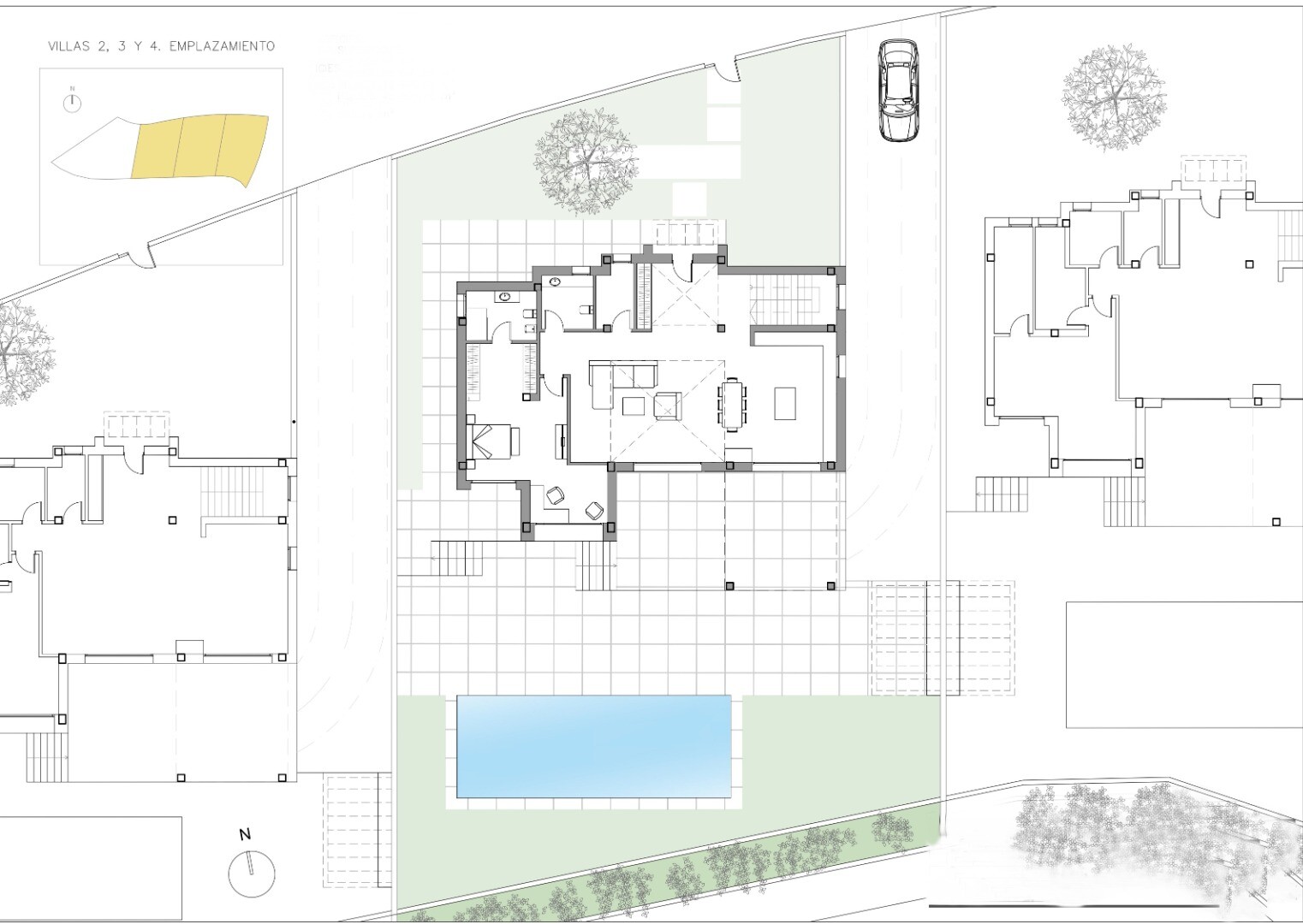
We present a new project of three contemporary-style villas with sea views, located in the municipality of Finestrat (Alicante), surrounded by a mountainous landscape and just a 5-minute drive from Benidorm.
High-quality materials and exclusive design finishes are used in all the homes. The interior feels spacious thanks to the high ceilings and l...arge windows facing the sea. The floor height is 2.80 m, and there are double-height spaces in the entrance hall and living room.
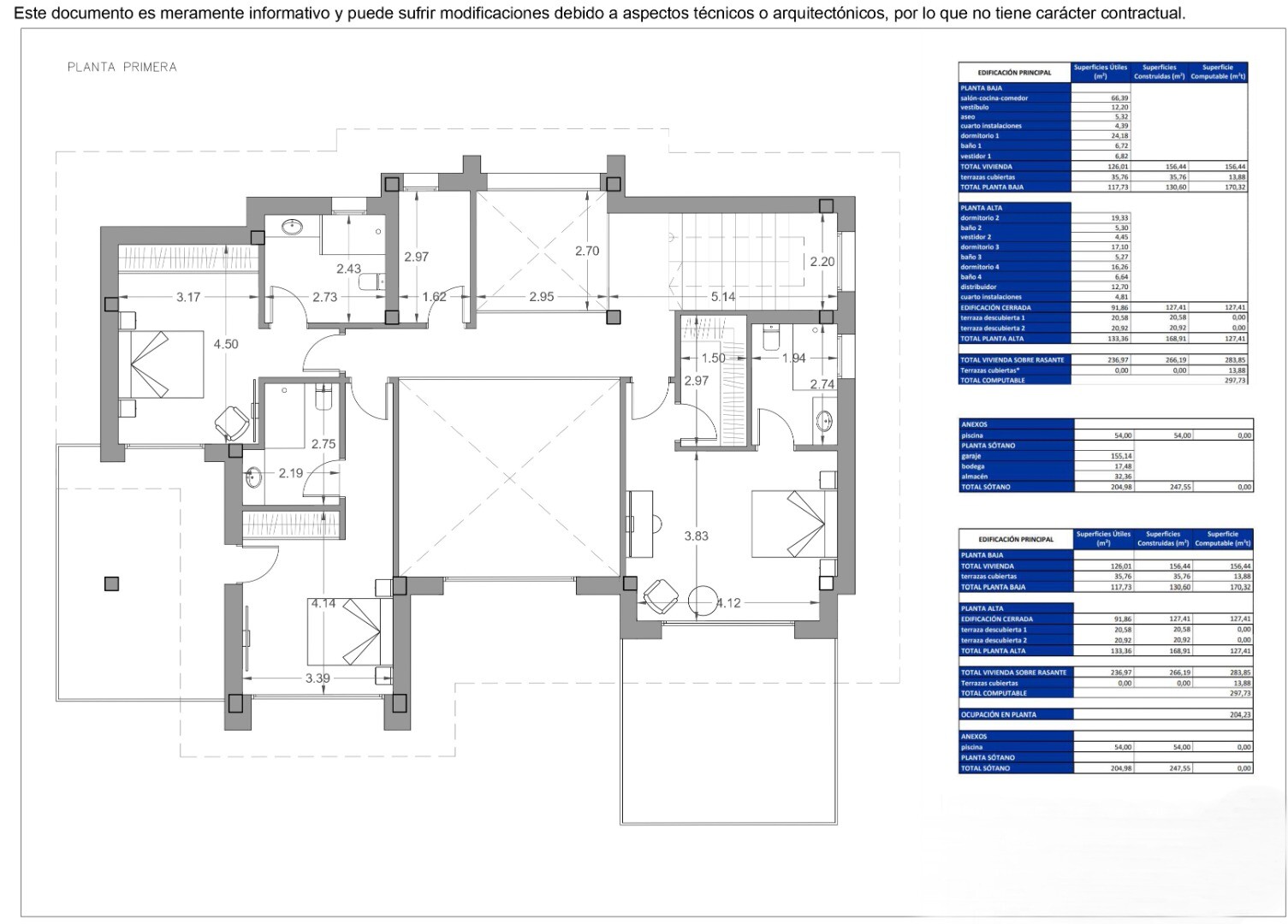
The constructed area of each villa is over 550 m², and the plot area is approximately 900 m². Each home has 300 m² on its two upper floors, plus a basement level of over 200 m² used as a garage.
The villas have 4 bedrooms, 5 bathrooms, 2 laundry rooms, and an open-plan living-dining-kitchen area. Outside, there is a covered porch, a pool with sea views, large gardens, and 2 terraces on the first floor.
All the facilities are highly efficient. The home's energy efficiency is very high. The façade is made of Ytong blocks. The woodwork and glass have low thermal conductivity. The ducted air conditioning system includes a heat pump, and there is also underfloor heating throughout, a ventilation system with air renewal, and a heat recovery system. The entire home features LED lighting, both inside and outside.
Furthermore, the future owner has the option of personalizing their home with additional amenities.